Grasso Design Group
Projects
Library
Grasso Design Group
Professional Architectural Services
Media Links
Contact Us
Elevations
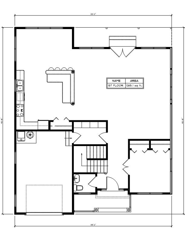
First Floor Plan
Second Floor Plan
Photographs
Share this Plan
Email to a Friend
Your Name:
Your Email Address:
Friend's Email Address:
4356